Palazzina in vendita

Fino Mornasco, Via Raimondi
€ 470.000
10 locali 10 locali
300 Mq 300 Mq
5 bagni 5 bagni

Palazzina in vendita

Fino Mornasco, Via Raimondi

Descrizione annuncio

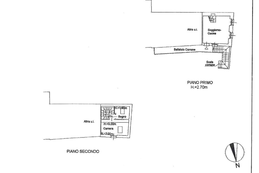
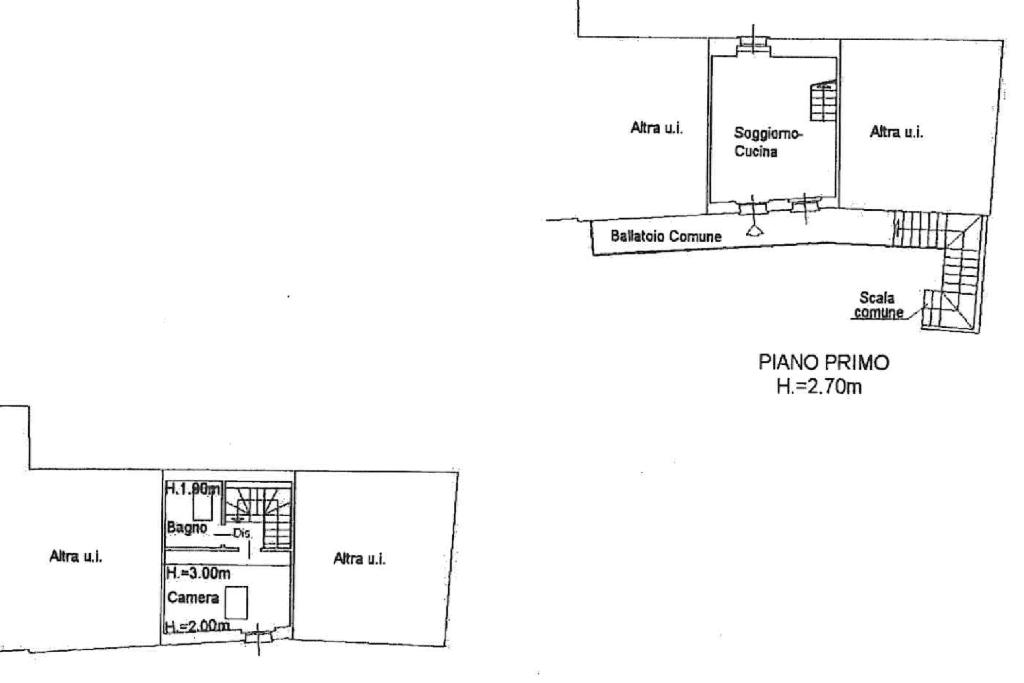
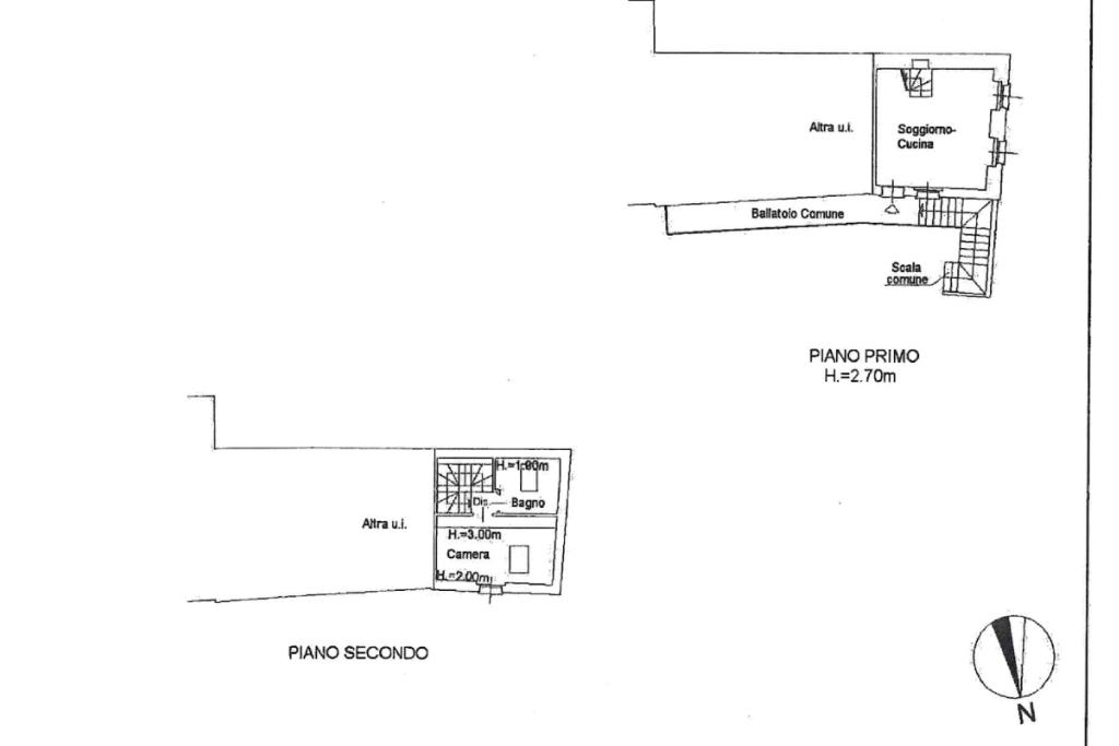
Fino Mornasco – Centro 5 Bilocali in vendita in contesto di corte. Nel centro di Fino Mornasco, in caratteristico contesto di corte e in posizione comoda con tutti i principali servizi, proponiamo in vendita cinque appartamenti bilocali facenti parte dello stesso fabbricato. Le soluzioni disponibili presentano metrature comprese tra circa 50 e 60 mq e si differenziano per disposizione e tipologia. All’interno dello stabile sono presenti sia bilocali al piano terra, sviluppati su un unico livello, sia bilocali ai piani primi disposti su due livelli in soluzione duplex, con una chiara separazione tra zona giorno e zona notte. Gli appartamenti risultano funzionali e ben distribuiti, adatti sia come abitazione principale sia come soluzione da mettere a immobili sono inseriti in un fabbricato oggetto di completa ristrutturazione, intervento che ha interessato il rifacimento degli impianti, delle finiture interne, della copertura e dell’isolamento, garantendo un buon livello di comfort abitativo e un contenuto costo di gestione. La posizione centrale di Fino Mornasco rappresenta un valore aggiunto: nelle immediate vicinanze si trovano negozi, servizi di prima necessità, stazione ferroviaria e principali collegamenti stradali.

La Agenzia Immobiliare Tecnocasa di Fino Mornasco è un punto di riferimento per la vendita e l’affitto di immobili a Fino Mornasco, Cassina Rizzardi, Luisago, Casnate con Bernate e nei principali comuni limitrofi.

Se stai pensando di vendere casa o desideri conoscere il valore reale del tuo immobile, puoi richiedere una valutazione gratuita e senza impegno, effettuata da professionisti del mercato immobiliare locale.

Le informazioni contenute nel presente annuncio sono fornite a scopo puramente informativo e divulgativo. Pur essendo redatte secondo criteri di correttezza, trasparenza e non ingannevolezza, non costituiscono elemento contrattuale.

Mostra tutto

Nelle vicinanze

Trasporto pubblico Trasporto pubblico
Fino Mornasco
Fino Mornasco
550 m
Via Garibaldi - Viale Risorgimento (Fino Mornasco)
Via Garibaldi - Viale Risorgimento (Fino Mornasco)
320 m
Fino Mornasco FNM
Fino Mornasco FNM
530 m
Cadorago
Cadorago
1,6 Km
Portichetto-Luisago
Portichetto-Luisago
1,9 Km
Ricariche auto elettriche Ricariche auto elettriche
Eurospin Fino Mornasco | EnelX
1,4 Km
Gorla Pneumatici
2,6 Km
Iper Grandate
3,0 Km
Scuole Scuole
Scuola Primaria Guglielmo Marconi
310 m
Scuola Secondaria G.B.Scalabrini
490 m
Scuola Primaria Gianni Rodari
1,2 Km
Scuola dell’Infanzia Porro-Lambertenghi
1,7 Km
Scuola Primaria A. Volta
1,8 Km
Farmacia Farmacia
Farmacia Gerosa
70 m
Farmacia Dell'Oca
320 m
Farmacia dottor Rivolta
1,4 Km
Farmacia
1,8 Km
Farmacia di Bulgorello
2,1 Km
Supermercati Supermercati
Eurospin
1,4 Km
Aldi
1,6 Km
Lidl
1,7 Km
Metro
2,1 Km
Penny Market
2,1 Km
Negozi Negozi
INES Crea
1,5 Km
Max Moda
2,5 Km
Armani Outlet
2,6 Km
Bar Bar
Bar
1,4 Km
Albert Club
1,7 Km
Bar Pasticceria Peccati di Gola
1,9 Km
Ristoranti Ristoranti
Grano Salis
260 m
La Cantina
350 m
Agriturismo Trekking Point
760 m
Toyo Sushi
880 m
Ristoranti
1,7 Km
Mostra tutto

Caratteristiche

Rif.:
61177422
Piano:
2 di 2 (Piano su più livelli)
Posti auto:
5
Balconi:
1
Camere da letto:
5
Arredamento:
Completo
Mostra tutto
Prezzo Prezzo
€ 470.000
Rata mutuo Rata mutuo
€ 2.195 / mese
Proponi il tuo prezzoProponi il tuo prezzo

Classe Energetica

Questo immobile è esente da classe energetica
Anno di costruzione:
1940
Riscaldamento:
Autonomo
Tipo impianto:
A radiatori
Tipo alimentazione:
Metano

Ti interessa visionare l'immobile?

Fissa un appuntamento  Fissa un appuntamento

Richiedi informazioni

Clicca su Leggi per aprire l'informativa
* Questi campi sono obbligatori

Calcola il tuo mutuo

Semplice e senza impegno
Anticipo

( % )
Mutuo

( % )

pochi semplici passi

inserisci i tuoi dati
Questionario completato
Grazie per aver richiesto un appuntamento senza impegno con un nostro Consulente del Credito e Assicurativo.

Hai inserito correttamente tutti i dati necessari e a breve riceverai una e-mail con un link da convalidare per inviare i tuoi dati.
Affiliato
Vigano' Immobiliare Srl
Via Garibaldi, 219 22073 Fino Mornasco (CO)

Il nostro staff


  • Valentina Di Falco
    Coordinatrice

  • Arneda Kambo
    Collaboratrice

  • Danilo Siragusa
    Responsabile

  • Massimiliano Viganò
    Affiliato
Via Garibaldi, 219 22073 Fino Mornasco (CO)
Zona: Fino Mornasco-Casnate con Bernate-Cassina Rizzardi-Luisago
Mostra su mappa
Affiliato
Vigano' Immobiliare Srl
Via Garibaldi, 219 22073 Fino Mornasco (CO)

2026 Tecnocasa Franchising S.p.A. - P. IVA 08365160152 - Via Monte Bianco 60/A 20089 Rozzano (MI). Ogni agenzia ha un proprio titolare ed è autonoma. Privacy policy | Policy utilizzo | Cookie policy